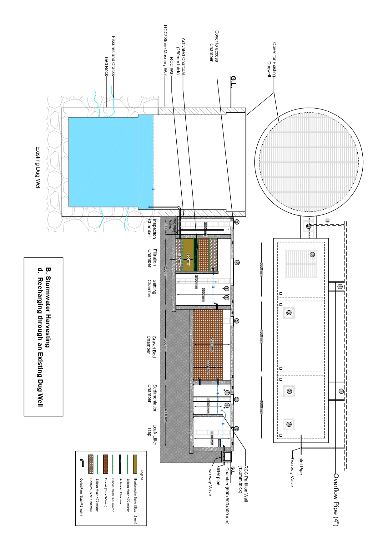
Recharging through an Existing Dug well

Bhujal Abhiyan

Recharging through an Existing Dug well

Recommended for

Areas having slope up to 5%.

Areas where big roofs are not available.

Annual rainfall up to 1000 mm. With a daily limit up to 50 mm.

Existing single dugwell with yield > 20000 lits/hour indicating presence of productive shallow/ deep aquifer/s.

Methodology

From the stormwater drainage line channelize the stormwater, generated within the project area through a 4” diameter flexible HDPE pipe. Join this drainpipe to the inlet pipe. If required, construct a small chamber of 0.5 m x 0.5 m x 0.5 m dimension for installation of a two-way valve.

Install a two-way ball bearing valve to the drainpipe, where it connects the inlet pipe of the filter media. Close this valve during the first spell of stormwater and allow the muddy, contaminated runoff water to go into the drain chamber. Also close this valve during the high intensity rainfall spells.

Using RCC slab, construct a settling tank (first) of 4 m x 2.5 m x 2.5 m (L x W x D) size with two chambers, one for leaf/litter trap & the other for sedimentation. For making two chambers construct a RCC partition wall of 150 mm thick as shown in the drawing.

In continuation with this, construct a second tank of 4.5 m x 2.5 m x 2.5 m size for the gravel bed to arrest primary silt. Fill it completely with a gravel layer of 2 m thickness.

In line with the earlier tanks construct a third tank of 3.5 m x 2.5 m x 3.5 m size. By constructing a partition wall of 150 mm thickness, first a settling pit and a filtration pits of 2 m x 2.5 m x 3.5 m and 1.5 m x 2.5 m x 3.5 m dimensions respectively.

At last, make an inspection chamber of 2 m x 2.5 m x 3 m size to accommodate the existing borewell. Hence, take due precautions so that the borewell is not damaged during construction of the chamber. Please refer to the drawing for further detail.

In the filtration chamber create a filter bed composed of Pebbles, Gravel, Activated Charcoal, Sand & Pebbles again. This filter material is readily available in the market.

Initially lay a 450 mm layer of pebbles at the bottom of the filter. Cover it with MS mesh of < 75 micron from the top. Over this MS mesh place a 700 mm thick uniform size layer of sand. This is also separated by a MS mesh of the same size. Add an activated charcoal layer of 250 mm thickness over this followed by silicon mesh again. Add a gravel layer of 750 mm thickness & on the top again a pebble layer of 500 mm, wrapped in MS mesh. For more details, refer to the drawings.

For carrying the water from one chamber to other and lastly to Dug well lay down 2” dia PVC pipes by making holes in the tank walls as shown in the drawing.

In the inspection chamber join 2" dia PVC pipe with the dug well by making an appropriate size hole into it. Put a two-way valve in the middle. This valve is to be connected to the drain chamber. This valve is to be opened when the dug well starts overflowing.

In the settling chamber provide two overflow pipes to drain out the excess water collected in it. This is required for high intensity rainfall spells. This helps to maintain the appropriate hydrostatic pressure within the settling chamber and passes the water into the filtration chamber.

These tanks are to be constructed below the ground. Hence it is necessary to cover the tank with a RCC slab. Provide manholes within the slab as shown in the drawing.

Provide proper air vents to all the chambers as shown in the drawings. Also provide overflow pipes in sedimentation, settling chambers as shown in the drawing.

Process

The channelised stormwater will come through the inlet pipe into the leaf/ litter trap chamber. This water is allowed to fall over a small slab (8” long and 2” thick) to avoid the erosion of the tank walls. This slab will also help in reducing the velocity of the inflow water. Soon after the water level in the chamber reaches the top of the partition wall, it will start flowing into the sedimentation chamber.

When it enters the sedimentation chamber, slowly the stormwater becomes stagnant. This helps in settling the heavy silt load present in the sedimentation chamber itself.

From this chamber the stormwater enters the gravel bed. There most of the silt, suspended material etc will get collected into the pores present in it. Soon after its saturation the water will start flowing into the settling chamber. Here 100% stormwater will not get cleaned.

When the water enters the settling chamber, it will start getting collected into it. After settling the water enters the filtration chamber from the top.

In the filtration chamber the water spreads over the pebble layer and because of high porosity it will go down naturally. During this movement the heavier clay and silt particles present in the water will start depositing into the pore spaces present in the gravel & sand layers. After entering the pebble layer, the water will settle down and remaining dust, clay and silt particles will get deposited at the bottom of the filter. Only clean water will come up.

The activated charcoal helps in adsorption of the chemical and bacterial contaminants present in the water. Hence, it is the most important and non-negotiable constituent of the artificial filter bed.

The clean water will slowly fill the pebble layer. Then it will start flowing through the PVC pipe joined with the dugwell. The velocity of this water will be very less. Hence the aquifer/s present within the dug well will accept continuously.

Precautions

During the first storm close the inlet pipe two-way valve and allow the runoff water to directly go to the main drainage line. This will help in avoiding the heavy contaminant load entering the filter chambers.

During high intensity rainfall spells (>25 mm/hour) open the inlet pipe two-way valve, so that maximum runoff water will drain directly into the drain chamber.

When inflow of water increases in the sedimentation & settling chambers and outflow from the gravel bed chamber and filtration chamber decreases, excess water collected in those chambers will automatically get drained out through two overflow pipes given in both the chambers.

If the dugwell starts overflowing, then immediately close the outflow valve and drain the excess water into the drain chamber. At the time of cleaning the filter keep the outflow valve closed. This will help in protection of the dug well from siltation, contamination, or damage.

It is necessary to carry and leave the filtered water within the water column available in the dug well.

Maintenance

Every year immediately after the monsoon take out the stagnant water present in the leaf/ litter trap, sedimentation and settling chambers. Also take out the silt/clay settled at the bottom of these chambers. For cleaning purposes use the manhole given in all the chambers.

Every year during March-April take out the upper layer of pebble, gravel & sand layers. Wash them thoroughly. After due drying, top up all these layers again.

Every year replace the activated charcoal layer.

The society/management of the building should train their personnel for the annual maintenance of the filter and make appropriate provision of funds.

Every year check the water quality parameters (chemical and bacteriological) of the dug well water at least during pre- and post-monsoon seasons.

Address

Bhujal Abhiyan Trust, Baner Pashan Link Road, Pune 411 021